


13922238204
产品简介:
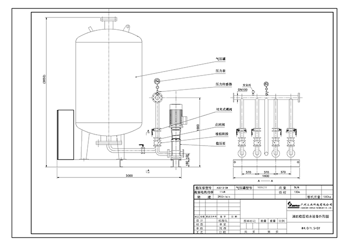
消防稳压给水设备由气压罐、控制箱及加压水泵三部分组成。
设备具有手动、自动、故障自投、一用一备或两用两倍、交替循环运行、巡检提醒、巡检泄压、运行记录保存等功能,具有电源指示、运行指示、故障指示、消防指示。
产品特点:
l 全智能控制自动启停泵组
l 一体式撬装,结构紧凑,占地面积少且便于安装
l 隔膜式气压水罐,内部无锈蚀,外部无凝露,延长使用寿命
l 有效平缓水系统压力波动,减少水泵启停频率
性能参数:
|
性能参数 型号 |
W3/0.45-0.9/0.7 |
W3/0.45-1.1/0.7 |
W4/1.5-SY |
|
止气/充气压力 |
0.3MPa |
0.3MPa |
0.4MPa |
|
气压罐总容量 |
1.5m³ |
1.5m³ |
5m³ |
|
操作柜总功率 |
45kW |
45kW |
45kW |
|
稳压压力上线 |
0.9MPa |
1.1MPa |
1.3MPa |
|
稳压压力下限 |
0.7MPa |
0.7MPa |
1.0MPa |
|
水泵台数 |
2 |
2 |
4 |
稳压泵控制箱:

稳压泵组图纸:
稳压泵组铭牌:
产品资质:
