
产品特点1、全智能控制自动启停泵组2、一体式撬装,结构紧凑,占地面积少且便于安装3、采用多台泵循环软启动方式,减少直接启动对电网的冲击及干扰变频消防自动恒压给水设备是一种通过变频控制方式自动恒定消防管网压力的成套给水设备。成套给水设备由变频控制箱、加压水泵、阀门、管件、钢结构架等组成。消防变频控......
13922238204
1、全智能控制自动启停泵组
2、一体式撬装,结构紧凑,占地面积少且便于安装
3、采用多台泵循环软启动方式,减少直接启动对电网的冲击及干扰
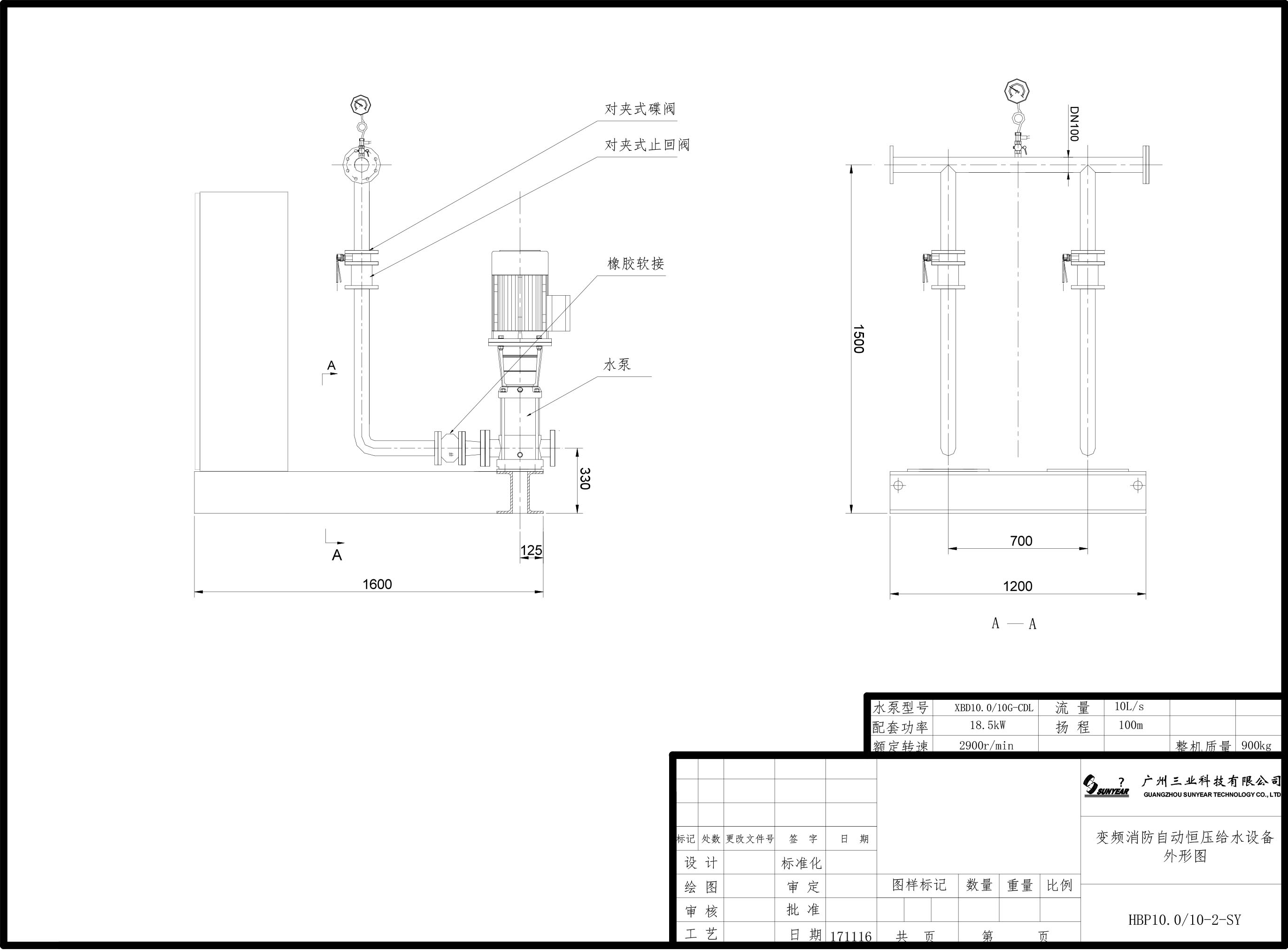
变频消防自动恒压给水设备是一种通过变频控制方式自动恒定消防管网压力的成套给水设备。成套给水设备由变频控制箱、加压水泵、阀门、管件、钢结构架等组成。
消防变频控制箱
变频消防自动恒压给水设备图纸
变频消防自动恒压给水设备铭牌
产品资质