




13922238204
产品参数
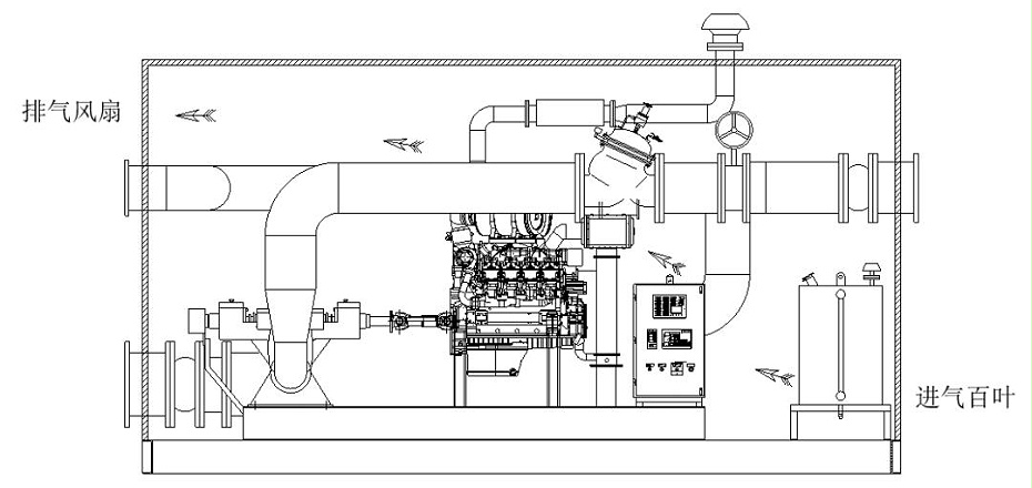
设备名称:货柜式柴油机消防泵组
外置燃油箱:有效容积9小时设计、机械液位计和排放阀等
箱式货柜尺寸:6400*3400*3200mm
优势特点
恒扬程/止回阀是一种自动调整给水管路特性的阀门, 主要应用在柴油机水泵、电动水泵的给水管道上,以保证水泵组按设计的额定扬程及额定流量给水作业,特别是可以避免水泵在低扬程区的超载运行的现象,并可以防止水泵超负荷启动。
电动安全泄压阀是装设在主集水管与消防蓄水池旁通管中的阀门,电动安全泄压阀的主要功能:①是安全阀--稳定系统的给水压力,防止给水压力高于系统设计安全压力而损坏系统设施;②电动泄压阀一一人为卸掉系统压力。
空气排放 环境通风
产品展示图


